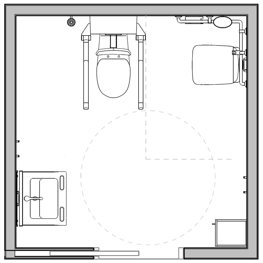
Fleksibad Medium



Fleksibad Medium består av høyderegulerbare produkter som kan justeres uten bruk av verktøy. Baderommet har en størrelse på 6,7 m² og oppfyller alle krav i henhold til TEK17 §12-9 - Bad og toalett. Det er godkjent etter Husbankens retningslinjer for investeringstilskudd til sykehjemsplasser og omsorgsboliger. Alt utstyr er tilvirket i spylesikker utførelse, IPX6.
Fleksibad Medium er et unikt baderomsforslag som tar hensyn til både funksjonalitet og design. Egner seg til skiftende brukere med like behov, samt til brukere med et stabilt sykdomsforløp. Ofte med behov for assistanse fra en pleier.
Servant, toalett og dusjstol kan høydereguleres uten bruk av verktøy. Baderommet kan derfor benyttes til brukere med ulike behov for høyde, eksempelvis sittende eller stående brukere.
Det er ikke bare brukerne som kan nyte godt av et fleksibelt baderom. Justeringsmulighetene bedrer også ergonomien for pleierne, som får en enklere arbeidshverdag og sunnere arbeidsforhold. Dette gjør produktene til en sunn og langsiktig innvestering.
Tanken bak det fleksible baderommet er at rommet bør tilpasses brukerne og ikke omvendt.
Toalett
- Kan høydereguleres 200 mm.
- Manuell eller elektrisk høyderegulering.
- Toalettstøttene følger heisen opp og ned.
- Toalettstøttene kan høydereguleres individuelt 150 mm, uten bruk av verktøy.
- Hvit eller antrasittgrå utførelse.
- Kompatibel med dusjtoalett.
Servant
- Høyderegulerbar.
- Elektrisk, gass eller manuell høyderegulering.
- Integrerte håndtak i front av servant.
- Avrundede hjørner og en helstøpt konstruksjon minimerer bakteriefeller på alle overflater.
- God plass i underkant for sittende brukere.
- Armatur med lang hendel og svingbar og vridbar tut.
Dusjsone
- Høyderegulerbar dusjstol.
- Manuell eller elektrisk høyderegulering.
- Oppfellbar dusjstol.
- Dusjgarnityr fungerer som håndgrep, gir økt sikkerhet.

Tegningsforslag og FDV
Her kan du laste ned komplett tegningsforslag for Fleksibad Medium, med tilhørende filer for AutoCad og Revit.
Vi har også samlet all FDV dokumentasjon tilknyttet utstyret på dette baderommet.
