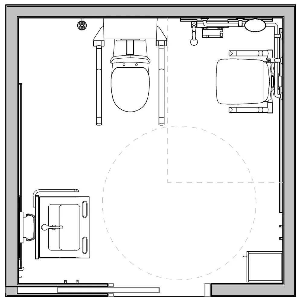
Fleksibad Pluss



Fleksibad Pluss består av høyde- og sideveis regulerbare produkter som kan justeres uten bruk av verktøy. Baderommet har en størrelse på 6,7 m² og oppfyller alle krav i henhold til TEK17 §12-9. Bad og toalett. Det er godkjent etter Husbankens retningslinjer for investeringstilskudd til sykehjemsplasser og omsorgsboliger. Alt utstyr er tilvirket i spylesikker utførelse, IPX6.
Fleksibad Pluss er et unikt baderomsforslag som tar hensyn til både funksjonalitet og design. Egner seg til skiftende brukere med ulike behov, samt til brukere som endrer behov fortløpende grunnet voksealder eller skiftende stadier ved sykdom. Ofte med behov for assistanse fra en pleier.
Produktene er montert på et skinnesystem som skaper full fleksibilitet. Med både horisontale og vertikale justeringsmuligheter har man et komplett innredningssystem som gjør det mulig å justere etter aktuelle behov. Dette gjør også produktene til en sunn og langsiktig innvestering. Ved hjelp av veggskinnene kan hvert enkelt produkt flyttes til ønsket posisjon og høyde - uten bruk av verktøy.
Skulle det i en periode ikke være bruk for et eller flere av produktene i rommet, kan de enkelt løftes av skinnen og lagres en annen plass. Eller produktene kan flyttes mellom ulike baderom etter behov. Tanken bak det fleksible baderommet er at rommet bør tilpasses brukerne og ikke omvendt.
Toalett
- Kan høydereguleres 200 mm.
- Manuell eller elektrisk høyderegulering.
- Toalettstøttene følger heisen opp og ned.
- Toalettstøttene kan høydereguleres individuelt 150 mm, uten bruk av verktøy.
- Hvit eller antrasittgrå utførelse.
- Kompatibel med dusjtoalett.
Servant
- Høyde- og sideregulerbar.
- Elektrisk, gass eller manuell høyderegulering.
- Integrerte håndtak i front av servant.
- Avrundede hjørner og en helstøpt konstruksjon minimerer bakteriefeller på alle overflater.
- God plass i underkant for sittende brukere.
- Armatur med lang hendel og svingbar og vridbar tut.
Dusjsone
- Høyde- og sideregulerbar dusjstol.
- Manuell eller elektrisk høyderegulering.
- Oppfellbar dusjstol, kan hektes av skinne ved behov for større plass - kan flyttes fra rom til rom.
- Dusjarmatur på skinne kan reguleres sideveis.
- Speilvend dusjsonen ved å bytte plass på dusjstol og armatur
- Dusjgarnityr fungerer som håndgrep, gir økt sikkerhet.

Tegningsforslag og FDV
Her kan du laste ned komplett tegningsforslag for Fleksibad Pluss, med tilhørende filer for AutoCad og Revit.
Vi har også samlet all FDV dokumentasjon tilknyttet utstyret på dette baderommet.
