Fleksibad Standard



Fleksibad Standard består av produkter montert i en fast høyde. Baderommet har en størrelse på 6,7 m² og oppfyller alle krav i henhold til TEK17 §12-9 - Bad og toalett. Det er godkjent etter Husbankens retningslinjer for investeringstilskudd til sykehjemsplasser og omsorgsboliger.
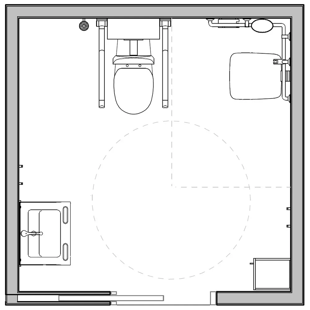
Fleksibad Standard er et baderomsforslag som egner seg til selvhjulpne brukere i et stabilt sykdomsforløp. Det består av produkter som gir støtte og sikkerhet både ved servant, toalett og dusj. Håndgrep i dusjsonen, oppfellbare toalettstøtter på begge sider av toalettet og servant med integrerte håndtak i front.
Skulle det være behov for mer fleksibilitet på baderommet anbefaler vi Fleksibad Medium eller Pluss.
Toalett
- Fast høyde.
- Ryggstøtte for ekstra komfort.
- Toalettstøtter i fast høyde, kan felles opp mot vegg.
Servant
- Fast høyde.
- Integrerte håndtak i front av servant.
- Avrundede hjørner og en helstøpt konstruksjon minimerer bakteriefeller på alle overflater.
- God plass i underkant for sittende brukere.
- Armatur med lang hendel og svingbar og vridbar tut.
Dusjsone
- Fastmontert dusjstol.
- Oppfellbart sete på dusjstol.
- Dusjgarnityr fungerer som håndgrep, gir økt sikkerhet.

Tegningsforslag og FDV
Her kan du laste ned komplett tegningsforslag for Fleksibad Standard, med tilhørende filer for AutoCad og Revit.
Vi har også samlet all FDV dokumentasjon tilknyttet utstyret på dette baderommet.


